各お部屋に風呂、トイレ、ベランダ、キッチン、洗濯場、エアコン、ナースコールが付属。リビング・ダイニングの床には暖かい床暖房システムを導入しています。火を使わないので安全で空気も汚さず快適な頭寒足熱の暖房を実現します。








各居室はすべてマンションタイプの個室。老人ホームとは思えない余裕のある広さです(18畳~24畳)。全室南向き。安心の日々も安らかな時間も明るいお部屋から生まれます。
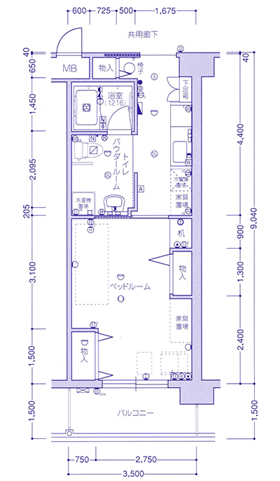
住居専用面積/40.68㎡
バルコニー面積/6.75㎡
合計面積/47.43㎡
| 1階 | 4室 |
|---|
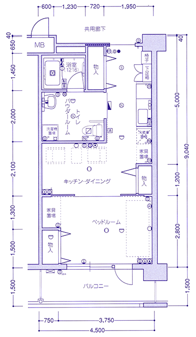
住居専用面積/40.68㎡
バルコニー面積/6.75㎡
合計面積/47.43㎡
| 2階 | 8室 |
|---|---|
| 3階 | 8室 |
| 4階 | 8室 |
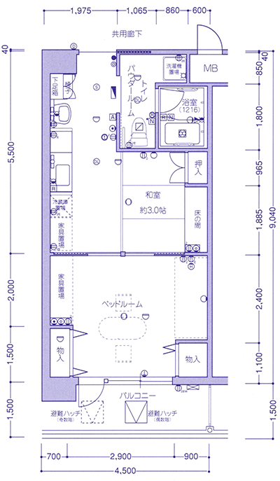
住居専用面積/31.64㎡
バルコニー面積/5.25㎡
合計面積/36.89㎡
| 2階 | 4室 |
|---|---|
| 3階 | 4室 |
| 4階 | 4室 |
| 5階 | 4室 |
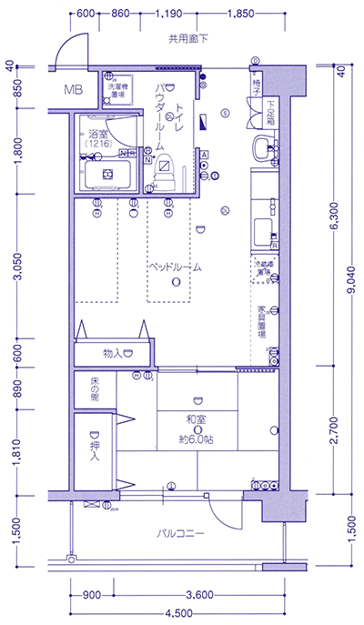
住居専用面積/39.38㎡
バルコニー面積/6.75㎡
合計面積/46.13㎡
| 5階 | 8室 |
|---|
いつでもご見学・ご相談承ります